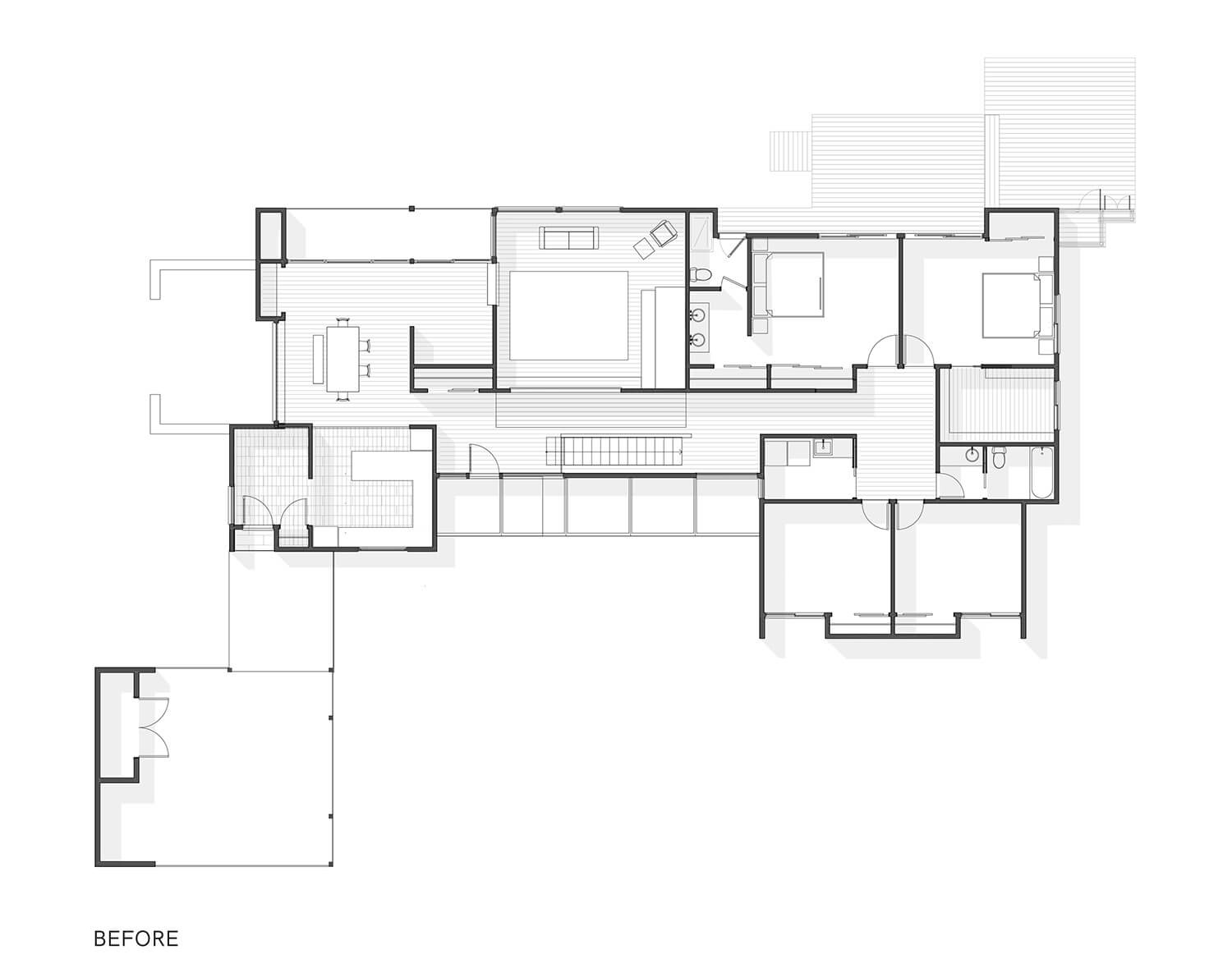
PLAN—BEFORE