Skip to content
Home
People
Process
Projects
About
Contact
Follow Us
PLAN—BEFORE
Post navigation
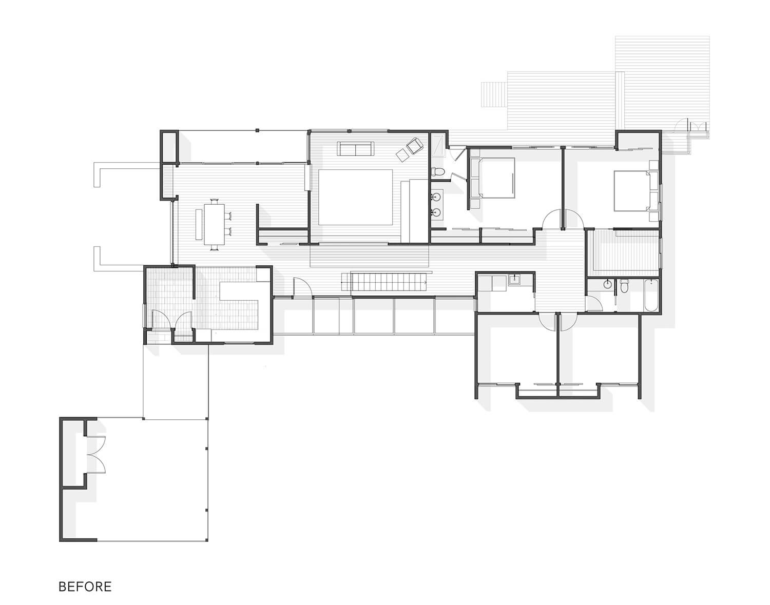
PLAN—BEFORE